Get Your Toilet Partition Quote Today!
Get Your Quote Today!
- Discuss Your Project with Our Partitions Experts.
- Send Us Your Plans, Drawings, Pictures, or Sketches.
- Our Experts will Respond TODAY with a Quote & Drawing!

Availability : 48 Hour Shipping Available - For Details Call 888-207-3005 ext 1
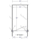
Hadrian Toilet Partition (Stainless Steel) 1 Between Wall (36"W x 62"D ) BW13660-SS-HADRIAN
Get Your Toilet Partition Quote Today!
Get Your Quote Today!
- Discuss Your Project with Our Partitions Experts.
- Send Us Your Plans, Drawings, Pictures, or Sketches.
- Our Experts will Respond TODAY with a Quote & Drawing!

Your dedicated Project Manager will assist you throughout every step of the process, from Design through Delivery.

Scott

Chad

Jeremy

Jonathan

Danielle

Paul

Erik

Maranda

Gillian
Toilet partitions made easy. When you work with Total Restroom on your next project, you’ll be working with the Experts - Project Managers who focus only on bathroom stall dividers and commercial restrooms everyday. We work on projects of all sizes and all budgets. From the small, local church to the large, national restaurant chain with multiple locations, our team stands ready to address your project’s specific needs. From Design through Delivery you’ll work with the same Project Manager. Not sure about the restroom layout, ADA compliance, material selection, or mounting options? Your dedicated Expert will provide all the details you need to make the right decisions for your project. And Total Restroom doesn’t stop once the bathroom partitions have been ordered. We’ll work to consolidate and schedule the shipment that works with your project timeline so you can get back to business as planned. Need repair parts? We’ll continue to be there for you long after your bathroom dividers have been installed.
Total Restroom is your material sourcing partner. We supply all brands, materials, mounting styles, and privacy options. We work with all of the top commercial restroom manufacturers, and that means we can offer you the largest selection of in-stock toilet partitions available to ship nationwide and warehouse-direct. When your project schedule is tight, you can rely on Total Restroom’s in-stock toilet partitions program to get the job done on time.
Get Your Quote Today!
- Discuss Your Project with Our Partitions Experts.
- Send Us Your Plans, Drawings, Pictures, or Sketches.
- Our Experts will Respond TODAY with a Quote & Drawing!






